Holiday House

Project of: CE Services Pvt. Ltd.

Holiday House

Residence Design

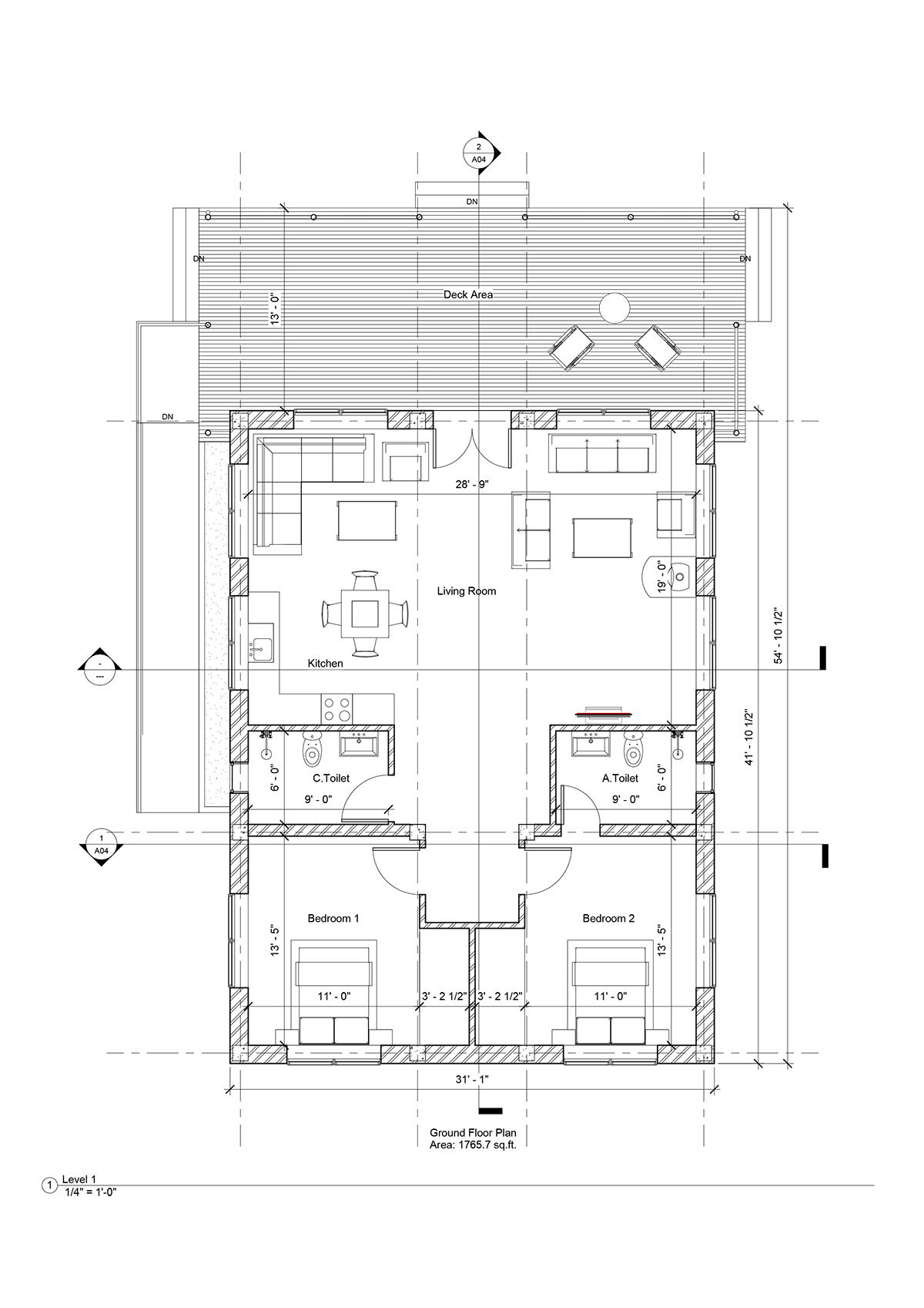
The site for this project was around 4000 sqm. where the client wanted a holiday house with a large living space. Initially, the planning involved the building form with a central living room with octagonal shape where bedrooms and kitchen were projected outwards from the four alternate sides of the octagon. The building later took a change and got a rectangular form with 2-tier roof.

Responsibilities:

  • Study the site contours and decide the access point and general layout of the structures.
  • Design and develop floor plans, elevations and prepare necessary visualizations and present them to the client.
  • Meeting with the client to discuss the design and update the changes.
  • Co-ordinating with the structural design team to finalize the floor plans.
  • Prepare the municipal approval drawings and the detail construction drawings.

Conceptual Design:

Final Design:

  • Conceptual Design
  • Design Development
  • Detail Drawings

Leave a Reply

Your email address will not be published.