Contemporary Residence

Project of: CE Services Pvt. Ltd.

Contemporary Residence

Residence Design

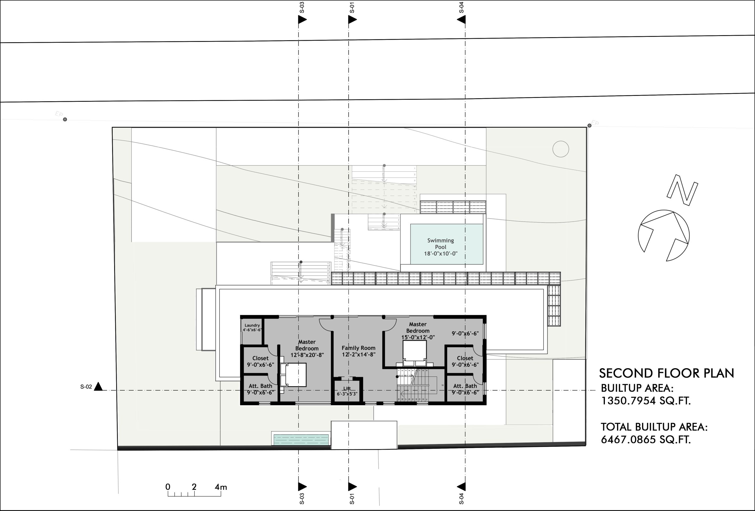
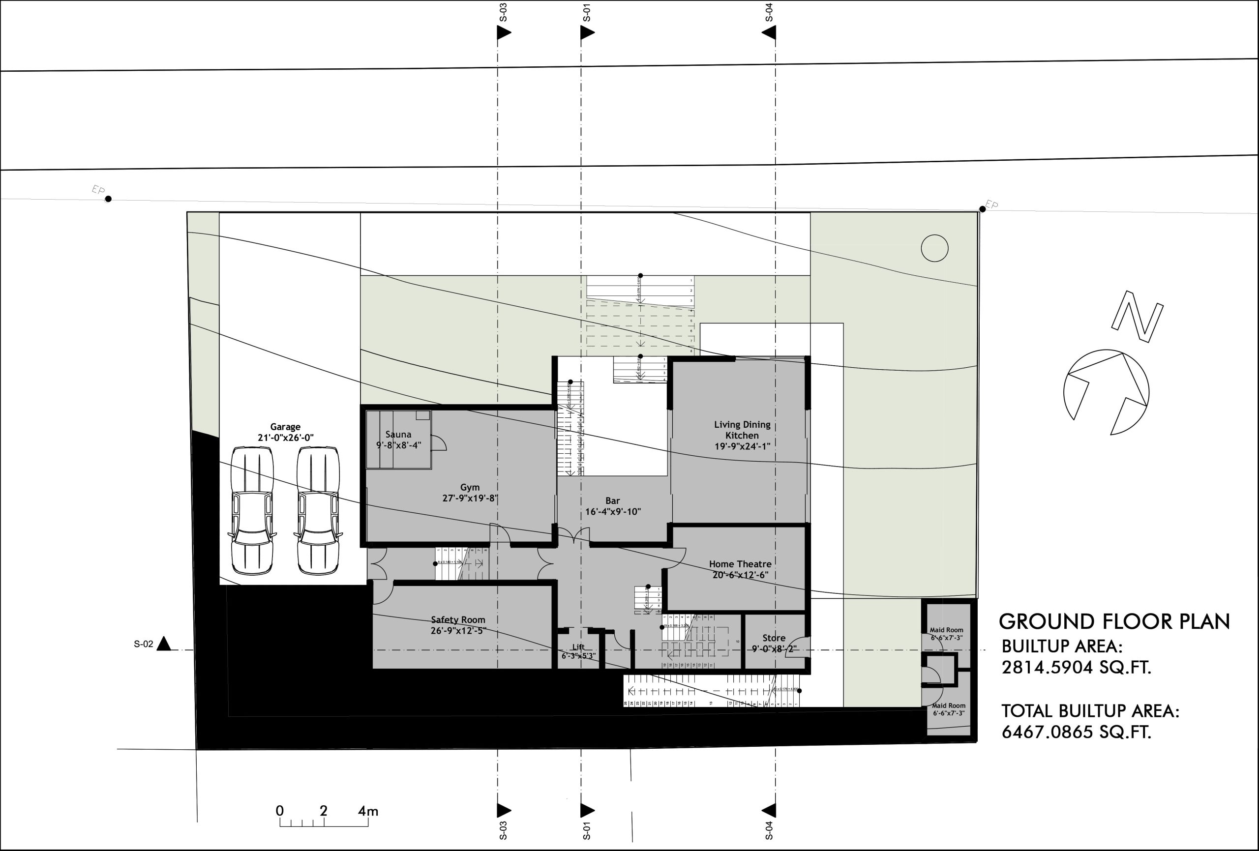
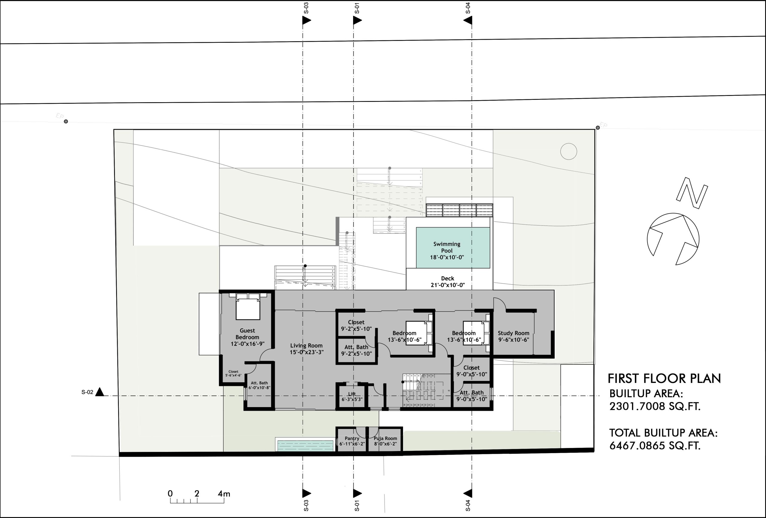
The site for this project was slope facing north with a very nice view of the city and the mountains. The client wanted to enjoy the view from all the rooms. As a result, the building was oriented east-west with large openings provided to the north.

The building was supposed to be a luxury residence which also incorporated home theatre, gym, swimming pool, bunker and elevator alongside the bedrooms, living rooms and kitchen.

The client was also specific with the design style for the residence. They wanted the contemporary style with extended cantilivers which was put together into the design.

Responsibilities:

  • Visit and study the site and its surroundings for developing the design
  • Design and develop floor plans and elevations and present the drawings to the client.
  • Meeting with the client to discuss the design and update the changes

  • Conceptual Design

Leave a Reply

Your email address will not be published.